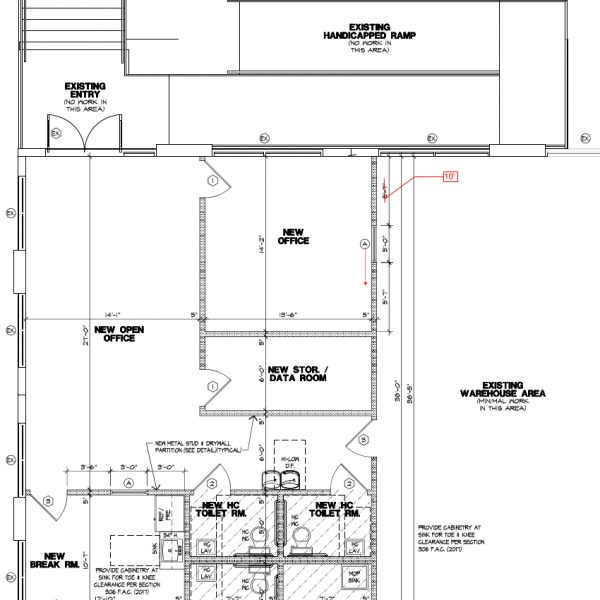
RUSH Construction, Inc. served as the Design Build General Contractor for a buildout project located at the Port Canaveral Logistics Center. The new 1,060 SF addition included dock levelers, edge of dock levelers, and lighting of 30,000 SF of warehouse designed to be occupied by Ralph’s Transfer Company.










