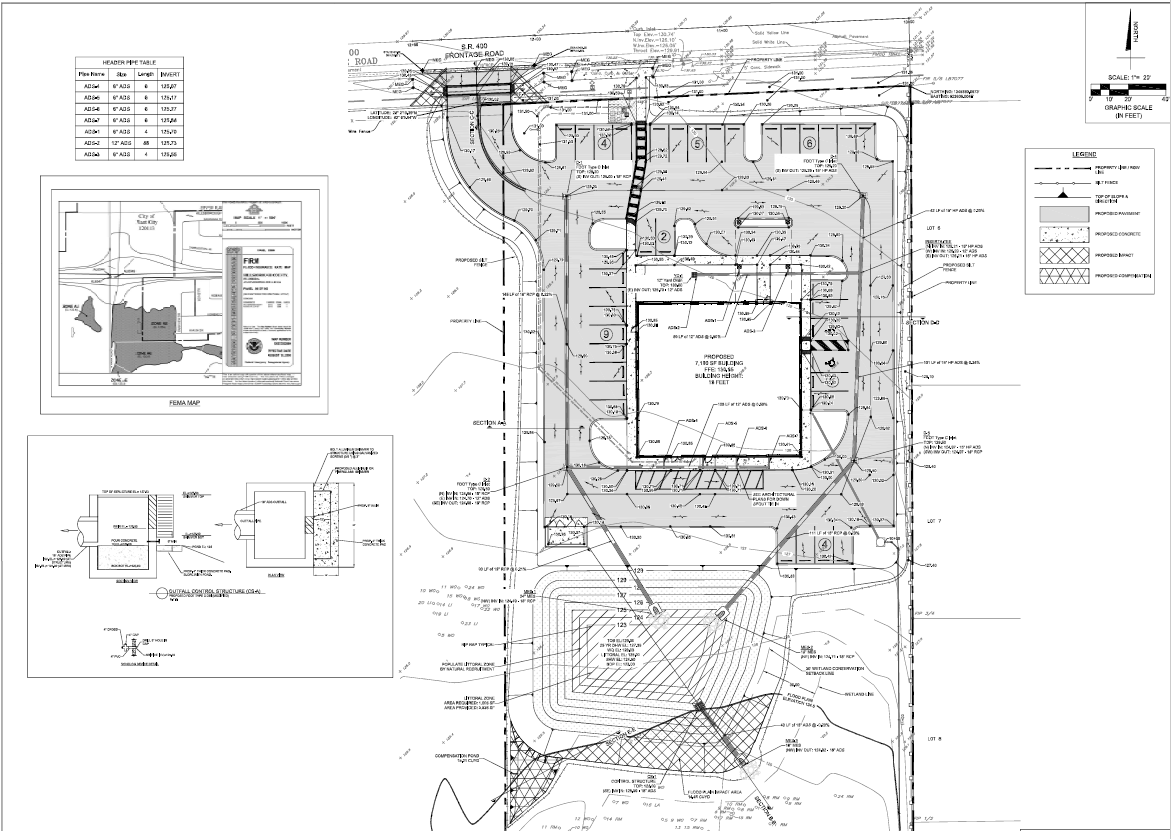
RUSH Construction, Inc. served as the General Contractor for the new DaVita Health Care Systems Dialysis Treatment Clinic. The project consisted of a one-story ground-up construction with an interior build-out. This new Clinic now functions as a facility where patients can receive their treatments in-house and also provide training to patients and their healthcare partners, allowing the patients to perform their treatments in the comfort of their home.













